Nuevo sistema de climatización en la Concejalía de Educación con fondos Next Generation..

Nuevo sistema de climatización en la Concejalía de Educación con fondos Next Generation

Se instalarán dos nuevas bombas de calor reversible que permitirán garantizar la calidad del aire, el confort térmico y un ahorro energético del 20%

Se han recibido 84.987 euros de ayuda europea para realizar esta inversión, que es de 121.410 euros

Se instalarán dos nuevas bombas de calor reversible que permitirán garantizar la calidad del aire, el confort térmico y un ahorro energético del 20%

Se han recibido 84.987 euros de ayuda europea para realizar esta inversión, que es de 121.410 euros

La Concejalía de Educación renovará su sistema de climatización que permitirá una mejora en la gestión de la temperatura del edificio y un ahorro energético de un 20%. El proyecto de sustitución de este sistema se presentó a una convocatoria de los #NextGenerationEU que ha sido concedida. Así, el proyecto para renovar el sistema garantiza la calidad del aire, el confort térmico y, a su vez, justifica el cumplimiento de la normativa vigente. La actuación, que se realizará la próxima primavera, requiere de una inversión de 121.410 euros y se recibirá una ayuda de 84.987 euros.

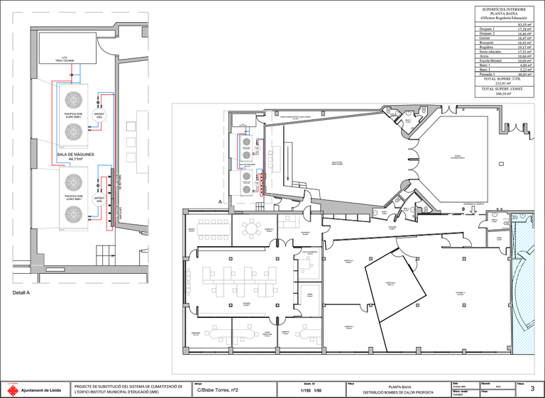
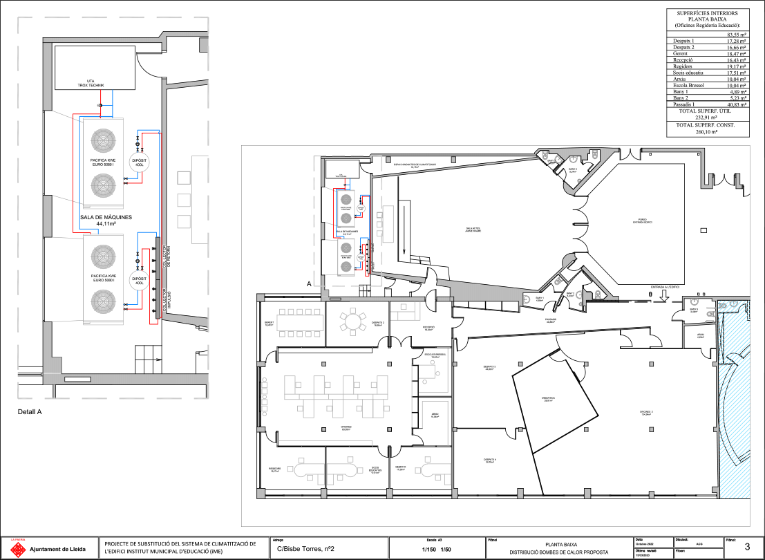
El proyecto plantea la sustitución de las dos bombas de calor reversibles de aire-agua que actualmente existen en la Concejalía, por otras unidades nuevas de potencia equivalente. De esta forma, se mantendrán las prestaciones de la instalación de climatización existentes y se dará respuesta a las exigencias de ahorro de energía, que será de aproximadamente un 20%.

Los equipos están situados en la sala de máquinas de la planta baja, con salida directa a la fachada de la calle Canonge González. Las unidades de producción de frío y calor actuales se reemplazarán por dos nuevas bombas de calor reversible por todo el sistema de climatización del edificio.

El proyecto se ha acogido a las ayudas de los programas de incentivos para la implantación de instalaciones de energías renovables térmicas en distintos sectores de la economía. La convocatoria fue publicada por el Ministerio para la Transición Ecológica y el reto demográfico (IDAE – Instituto para la Diversificación y Ahorro de la Energía) y el Departamento de Acción Climática, Alimentación y Agenda Rural (ICAEN – Instituto Catalán de Energía), por medio del Plan de Recuperación, Transformación y Resiliencia (PRTR) del Gobierno de España, dentro de los fondos Next Generation.