<bound method DexterityContent.Title of <NewsItem at /fs-paeria/paeria/ca/actualitat/noticies/14795>>.

L’Ajuntament de Lleida licita 3 projectes a Magraners, Butsenit i les Basses per 300.000 €

La Junta de Govern Local aprova subvencions per un import de 105.000 euros a una desena de comunitats de veïns, bàsicament al barri de la Mariola i a Balàfia, per instal·lar-hi ascensors

La Junta de Govern Local aprova subvencions per un import de 105.000 euros a una desena de comunitats de veïns, bàsicament al barri de la Mariola i a Balàfia, per instal·lar-hi ascensors

La Junta de Govern Local de l’Ajuntament de Lleida ha aprovat la  licitació de tres projectes amb una inversió total de prop de 300.000 euros. Es tracta de l’adequació de l’antic cinema Goya, a Magraners; l’arranjament dels accessos de les Basses i la construcció d’una coberta a la pista poliesportiva de Butsènit. Així mateix, s’ha donat llum verda a les subvencions a deu comunitats de veïns per instal·lar-hi ascensors per un import de 105.000 euros. (arxiu de so Àngel Ros)

L’adequació de l’antic cinema Goya, a Magraners consisteix en recuperar aquest antic equipament per tal que l’associació de veïns i les entitats del barri puguin fer-hi activitats, cursos i assajos. En aquest sentit, es duran a terme obres de millora perquè l’espai reuneixi les condicions suficients per poder-hi acollir diferents actes. Les actuacions inclouen la reparació de la coberta actual, l’enderroc de les parets divisòries de la planta baixa i dels lavabos de la primera planta; a més, s’instal·larà nou enllumenat, es construiran nous lavabos a la planta baixa, es repassarà la pintura interior, s’habilitarà una porta d’emergència i es posaran extintors i nova senyalització. Així, es preveu un termini d’execució de 3 mesos i un pressupost de 90.000 euros.

El projecte d’arranjament dels accessos a les Basses i camins de l’entorn, que té un pressupost de prop de 85.000 euros i un termini d’execució de 2 mesos, consisteix en l’adequació i millora de l’accés al Parc. Així, es preveu la millora del ferm d’una superfície aproximada de 700 metres quadrats i el reforç del paviment del camí de l’Albi que té una longitud total de 1.300 metres lineals i una amplada de 4,50 metres, concretament entre l’encreuament del camí del Burro i l’Autovia A-2, es preveu la millora del ferm. Aquest projecte compta a una subvenció del Pla Unic d’Obres i Serveis de la Generalitat.

Aquesta actuació inclou, a més, el condicionament de l’antic càmping per tal de revitalitzar-lo i poder gaudir d’aquestes instal·lacions. En aquesta zona els treballs se centraran en el condicionament del terreny, mitjançant una neteja i esbrossada dels parterres i espais perimetrals de l’antic càmping que ocupa aproximadament 8.500 m2.

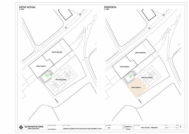
Pel que fa al projecte de pista polivalent a Butsènit, que està situada dins del conjunt d’equipaments format per l’ermita i el CEIP Antoni Bergós, es preveu instal·lar una coberta per cobrir i protegir part de la pista per tal que l’equipament resulti més funcional i doni servei al centre escolar. A més, s’hi ubicaran uns banys i un petit magatzem.

La coberta estarà formada per panells sandvitx suportats per una estructura metàl·lica de pilars i es tancaran els laterals. La pista polivalent té unes dimensions d’uns 16 m x 34 m i amb la nova estructura es cobriran uns 16 m x 20,30 m, és a dir una superfície de 324,80 m2. Aquesta actuació té un termini d’execució de 2 mesos i un pressupost de 120.000 euros. Aquest projecte de Butsènit també compta amb una subvenció del PUOSC

Subvencions per instal·lar 10 ascensors

La Junta de Govern Local ha aprovat donar subvencions a 10 comunitats de veïns per import de prop de 105.000 euros per poder instal·lar ascensors als edificis, que bàsicament estan ubicats majoritàriament al barri de la Mariola i algun a Balàfia.

Cal recordar que en els últims anys s’han donat subvencions per instal·lar 23 ascensors en diferents barris de la ciutat, especialment a la Mariola i Pardinyes, amb una inversió municipal de 350.000 euros.

De l’import total de l’obra, un 60% el subvenciona la Generalitat i un 20%, a més de les taxes i els permisos, els subvenciona l’Ajuntament de Lleida. El 20% restant l’assumeixen els veïns de l’edifici.