<bound method DexterityContent.Title of <NewsItem at /fs-paeria/paeria/ca/actualitat/noticies/15915>>.

L’Ajuntament de Lleida inicia les obres per cobrir la pista polivalent de Butsènit

La instal·lació de la nova coberta permetrà que l’equipament sigui més funcional per fer activitats en qualsevol època de l’any

La instal·lació de la nova coberta permetrà que l’equipament sigui més funcional per fer activitats en qualsevol època de l’any

L’alcalde de Lleida, Àngel Ros, acompanyat de la 1a tinent d’alcalde, Marta Camps, i del regidor de Medi Ambient i Horta, Josep Barberà, ha visitat l’inici de les obres per instal·lar una coberta per protegir la pista polivalent de Butsènit. D’aquesta manera, l’equipament resultarà més funcional per a fer activitats en qualsevol època de l’any. (arxiu de so)

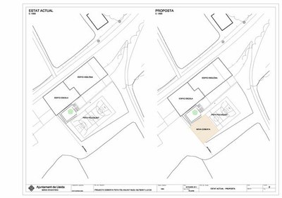
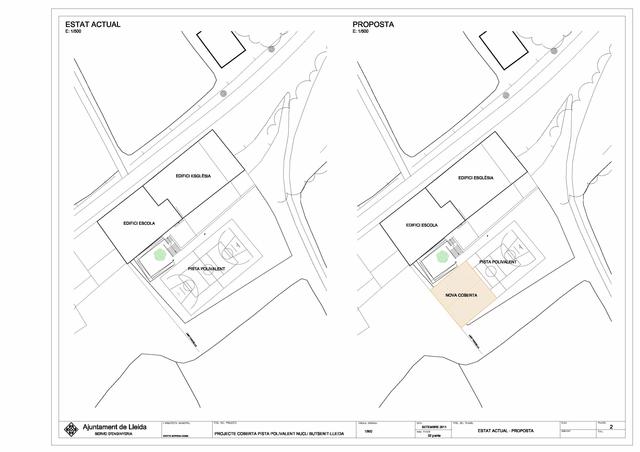
La instal·lació d’aquesta nova coberta a la pista polivalent a Butsènit, que està situada dins del conjunt d’equipaments format per l’ermita i el CEIP Antoni Bergós, també permetrà donar servei al centre escolar. A més, s’hi ubicaran uns banys i un petit magatzem.

La coberta estarà formada per panells sandvitx suportats per una estructura metàl·lica de pilars i es tancaran els laterals. La pista polivalent té unes dimensions de 544 metres quadrats i amb la col·locació de la nova coberta es taparan 324,8 m2, és a dir, gairebé el 60% de la superfície total. A més, es col·locaran unes cortines lliscants que permetran aïllar lateralment del vent, sol o pluja la part de la pista que es vulgui protegir.

Aquesta actuació, que compta amb una subvenció del Pla Únic d’Obres i Serveis de Catalunya, té un pressupost de 120.000 euros. És previst que la nova coberta de la pista polivalent de Butsènit estigui acabada coincidint amb l’inici del curs escolar del setembre i per a la celebració de l'Aplec de Butsènit.